Objektart
Adresse
Objektdaten
Informationen
Ausstattung
Details
Die derzeitigen Mieteinnahmen belaufen sich auf 18.600 € p.a.
Das Objekt ist derzeit komplett vermietet.
Dieses vielseitige Wohn- und Geschäftshaus befindet sich in absolut zentraler Lage von Fröndenberg und überzeugt durch seine hervorragende Sichtbarkeit sowie eine hohe Kundenfrequenz. Die Immobilie bietet eine ideale Kombination aus Gewerbe- und Wohnnutzung und stellt somit eine interessante Kapitalanlage dar.
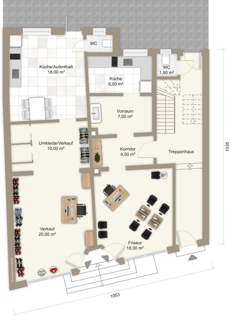
Im Erdgeschoss befinden sich zwei separate Ladenlokale mit ca. 60 m² und ca. 40 m² Fläche. Sie profitieren von der ausgezeichneten Lauflage.
Das Obergeschoss beherbergt eine großzügige Wohnung mit ca. 100 m² Wohnfläche, während im Dachgeschoss eine weitere Wohneinheit mit ca. 70 m² zur Verfügung steht.
Ein zusätzlicher Pluspunkt ist das rückwärtig gelegene Nebengebäude im Hofraum. Dieses ist aktuell leerstehend und renovierungsbedürftig, bietet jedoch erhebliches Entwicklungspotenzial – beispielsweise zur Schaffung weiterer Wohn- oder Nutzflächen.
Das Objekt ist vollständig unterkellert und bietet somit zusätzliche Nutz- und Lagerflächen.
Das Objekt eignet sich ideal für Kapitalanleger, die von einer soliden Bestandsrendite profitieren und gleichzeitig weiteres Wertsteigerungspotenzial durch die Entwicklung des Nebengebäudes realisieren möchten.
FLÄCHENÜBERSICHT
Ladenlokal 1: ca. 60 m²
Ladenlokal 2: ca. 40 m²
Wohnung Obergeschoss: ca. 100 m²
Wohnung Dachgeschoss: ca. 70 m²
AUSSTATTUNG & BESONDERHEITEN
Zentrale Innenstadtlage
Zwei getrennte Gewerbeeinheiten im Erdgeschoss
Zwei Wohneinheiten
Voll unterkellert
Nebengebäude im Hof mit Entwicklungspotenzial
Gute Vermietbarkeit durch attraktive Lage
Die Immobilie befindet sich im Herzen von Fröndenberg in bester Lauflage. Die zentrale Position garantiert eine hohe Passantenfrequenz und optimale Erreichbarkeit.
Öffentliche Parkmöglichkeiten stehen im direkten Umfeld ausreichend zur Verfügung und sorgen für zusätzlichen Komfort für Kunden und Bewohner.
Energieausweis (Verbrauchsausweis)
114,20 kWh / (m²*a) Energieverbrauchskennwert
114,20 kWh / (m²*a) Energieverbrauchskennwert
114,20 kWh / (m²*a) Energieverbrauchskennwert
Weitere Informationen
| Befeuerung | Gas |
| Energieverbrauch für Warmwasser | nicht enthalten |
| Energieausweis Baujahr | 1932 |
| Heizung | Zentralheizung |
Ich bin damit einverstanden, dass mir Karten von Google angezeigt werden. Es gelten die Datenschutzbedingungen von Google (https://policies.google.com/privacy).
Ich bin einverstanden